Villa Begoña, a luxury single level villa with sea views on the Costa Blanca


  • Bedrooms: 4

    Bathrooms: 5

    Living rooms: 1

    Dining rooms: 1

    Kitchen: Fully equipped

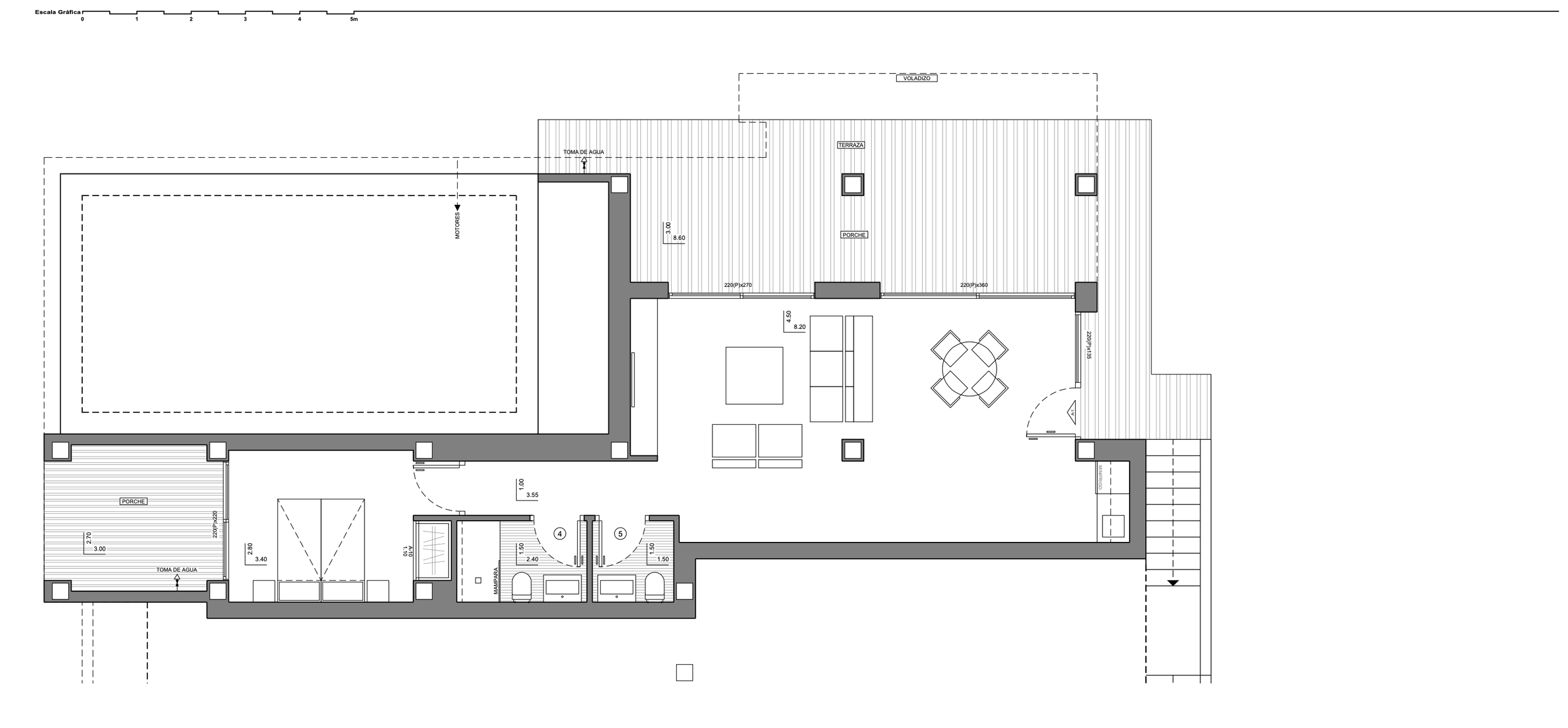
    Built Area: 471 m²

    Living Space: 217 m²

    Terrace: 141 m²

    Land: 813 m²

    Views: Sea

    Location: Cumbre del Sol, Benitachell, Costa Blanca, Alicante, Spain

    Price: € 1,297,000

  • Set on the Costa Blanca amid Mediterranean vegetation and abundant sunshine, Villa Begoña is a luxury single level villa with sea views on the Costa Blanca designed for buyers who prioritise comfort, practicality, and an effortless relationship with the outdoors. Currently under construction, the concept is clear: remove the barriers between inside and out, creating a bright, functional home where everyday living flows naturally onto the terrace and pool.

    Although the villa is arranged over two floors, the main floor is where day to day life happens. This makes Villa Begoña particularly suitable for clients seeking the ease of single storey living, without compromising on space, privacy, or the ability to host.


    Architecture and lifestyle planning

    The heart of the home is a spacious open plan living room, dining area and kitchen, designed as one continuous social space that opens directly onto the terrace. This layout supports the Mediterranean lifestyle in a very practical way, enabling indoor outdoor dining, relaxed entertaining, and daily enjoyment of the climate. In that sense, Villa Begoña delivers exactly what buyers expect from a luxury single level villa with sea views on the Costa Blanca.

    The sleeping area includes three double bedrooms, with the principal suite benefiting from direct terrace access and a private bathroom, ensuring both privacy and convenience. A further large open space on the lower level adds flexibility and long term value, with potential uses ranging from a gym and leisure zone to an independent apartment style area or a dedicated workspace.


    Comfort, efficiency, and future ready specification

    Villa Begoña will be equipped with high efficiency systems chosen to optimise comfort and sustainability. The specification includes aerothermal climate control via an air source heat pump, underfloor heating and heat recovery ventilation, alongside alarm systems and home automation. Solar panels and pre-installation for electric vehicle charging further reinforce the home’s future ready positioning, consistent with the expectations of a luxury single level villa with sea views on the Costa Blanca.

    Materials, orientation and daylight have been considered from the outset to enhance liveability, reduce unnecessary energy demand, and keep the home comfortable throughout the year.


    Outdoor living, pool, and Mediterranean setting

    The terrace and private pool create a daily invitation to live outdoors. With the Costa Blanca known for long periods of clear skies, the villa is designed to make the most of the light, the views, and the sense of calm that Mediterranean surroundings provide. Living here is not about excess, but about quality: an intelligent plan, strong engineering, and an environment that encourages a slower, more connected way of life.


    Key facts at a glance:

    • Orientation: south west

    • 4 bedrooms and 5 bathrooms

    • Plot: 813 m²

    • Housing area: 217 m²

    • Terraces: 141 m²

    • Private swimming pool, garden and barbecue area

    • Modern style

    • Sea views

    • Aerothermal air source heat pump, underfloor heating, heat recovery ventilation

    • Alarm and home automation

    • Solar panels

    • Energy rating A

    • Boundary and garden walls

    • Motorised driveway gate and walk in gate

    • Optional lounge space

    • Pre installation for electric car charging

  • Heating: Underfloor heating

    Air conditioning: Centralized ducts

    Pool: Infinity

    Garden: Yes

    Open terrace: Yes

    Barbecue area: Yes

    Laundry room: Yes

    Storage room: Yes

    Carport: Yes

    Solar panels: Yes

    Sat/TV: Yes

    Security door: Yes

    Double glazing: Yes

    Fenced plot: Yes

    Furnished: No

    Energy certificate: A

  • Orientation: Southwest

    Terrain type: Urban

    Good access and infrastructure: Yes

    Distance to sea: 2 km

    Distance to services: 2 km

    Distance to town center: 5 km

    Restaurants: 5 km

    Golf: 9 km

Enquire

Check Out Similar Listings

Apartment Brezo, Benidorm
Under Construction

Bedrooms: 1

Bathrooms: 1

Built Area: 84,7 m²

Living Space: 53 m²

Terrace: 14,3 m²

Floor: 39th

Price: € 699,000

Apartment Amapola, Denia
Under Construction

Bedrooms: 2-3

Bathrooms: 2

Built Area: N/A

Living Space: 89,47 m² - 106,79 m²

Terrace: N/A

Views: City and mountain

Price: From € 330,000

Apartment Girasol, Albir
Under Construction

Bedrooms: 2

Bathrooms: 2

Built Area: 105 m²

Living Space: 80 m²

Terrace: 25 m²

Year of completion: 2026

Price: From € 520,000

Get in touch

Contact us for any questions, viewings or to enquire into more than two hundred unique new properties we represent across the Marina Alta, Costa Blanca.